Topic: Тарировка сложного бака с 2-я ДУТ
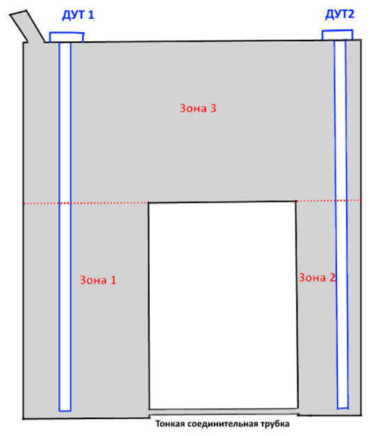
Имеется бак такой формы.
Объем Зоны-1 не равен объему Зоны-2
Зона-1 и Зона-2 соединены тонкой трубкой. Уровень в этих зонах после заправки выравнивается минут через 10.
Правильно ли я вижу алгоритм тарировки такого бака?
1. Перекрываем соединительную трубку
2. Заполняем порциями Зону-1 и записываем в таблицу показания ДУТ-1 и объем шага заправки
3. Заполняем порциями Зону-2 и записываем в таблицу показания ДУТ-2 и объем шага заправки
4. Заполняем Зону-3 и для каждого ДУТ записываем в таблицу показания и 1/2 объема шага заправки
В результате получаем тарировочную таблицу для данного бака.
Или можно так?
1. Соединительную трубку не перекрываем
2. Заполняем порцию топлива, ждем когда уровень в Зоне-1 и Зоне-2 выровняется и записываем в таблицу для каждого ДУТ показания и 1/2 объема шага заправки.
3. Заполняем и фиксируем данные в Зоне-3 аналогично
Будет ли второй алгоритм справедлив, даже если объемы Зоны-1 и Зоны-2 не равны???
Так же меня беспокоит тот факт, что уровни в Зонах 1 и 2 будут выравниваться долго и к тому времени, как данные в этих зонах будут соответствовать тарировочной таблице, определение факта заправки уже состоится и ее объем рассчитается не верно...
Подозреваю, что второй алгоритм применим исключительно при соединении Зоны-1 и Зоны-2 настолько толстой трубкой, что уровень в них выравнивается очень быстро, почти мгновенно...